
GSK
Oficinas GMS
Diseño / Desarrollo de proyecto / Dirección de obra / Cierre de obra y objetivos

Problemática
El Cliente tenía que resolver unas oficinas corporativas cercanas a distintas áreas de producción. Contaban con un edificio de producción existente con una altura libre de 6.00 m.


Resolución
Se generó un entrepiso dentro del edificio de producción existente y se adicionó un edificio nuevo cuya implantación se dió en un patio interno logrando la superficie necesaria según layout.



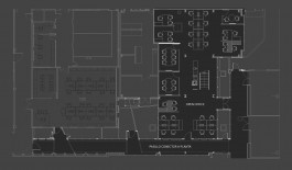
Layout
Se han desarrollado un sector gerencial con un despacho privado y una sala de reuniones corporativa y un área operativa desarrollada en un open plan con salas operativas, office y áreas de apoyatura. Se incorporó al proyecto una nueva circulación que conecta las oficinas con los sectores de producción de la planta industrial.
Materialidad
La imagen industrial fue la adoptada reforzando la idea de planta industrial. Se proyectó una estructura y entrepisos metálicos y se mantuvo todas las instalaciones a la vista lo que nos permitió aprovecha la poca altura disponible al máximo.









Gestión
de diseño

Gestión
de diseño

Gestión
de obra

Cierre de
obra y
objetivos

Mudanzas
coorporativas

Concursos
GSK
Oficinas GMS
Diseño / Desarrollo de proyecto / Dirección de obra / Cierre de obra y objetivos

Problemática
El Cliente tenía que resolver unas oficinas corporativas cercanas a distintas áreas de producción. Contaban con un edificio de producción existente con una altura libre de 6.00 m.


Resolución
Se generó un entrepiso dentro del edificio de producción existente y se adicionó un edificio nuevo cuya implantación se dió en un patio interno logrando la superficie necesaria según layout.



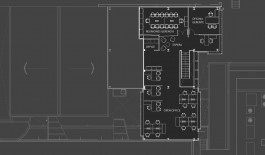
Layout
Se han desarrollado un sector gerencial con un despacho privado y una sala de reuniones corporativa y un área operativa desarrollada en un open plan con salas operativas, office y áreas de apoyatura. Se incorporó al proyecto una nueva circulación que conecta las oficinas con los sectores de producción de la planta industrial.
Materialidad
La imagen industrial fue la adoptada reforzando la idea de planta industrial. Se proyectó una estructura y entrepisos metálicos y se mantuvo todas las instalaciones a la vista lo que nos permitió aprovecha la poca altura disponible al máximo.







